欢迎来到舜德不锈钢有限公司官方网站!
服务热线:027-83893889

舜德水箱微信服务号微信服务号

公司动态
当前位置:首页 > 新闻资讯 > 公司动态

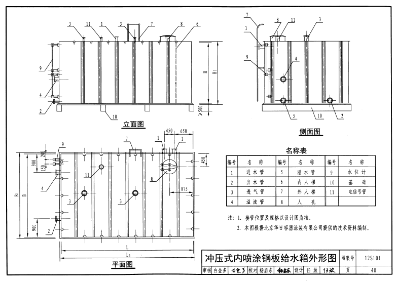
不锈钢消防水箱 图集12S101
来源:本站   点击:10947   时间:2019-09-29
   

 

点击下载不锈钢水箱图集 12S101   PDF格式

 

不锈钢消防水箱图集12S101  (基础图)

 

 

不锈钢消防水箱图集12S101  (选用表)

 

 

不锈钢消防水箱图集12S101  (外形图)

相关资讯

    联系我们
    电话:027-83893889
     
    手机:15926221333 王经理
     
    电话:027-83893889
     
    传真:027-83386079
     
    Q Q:7748867
     
    邮箱:wwxpp@126.com
     
    工厂地址:武汉市东西湖区吴家山田园大道新城十四路